• Le réseau des mandataires immobiliers
  • | Le journal
  • Coup de coeur Référence: 204r2

    Appartement de standing T4

    Vichy (03200)
    • Surface 79 m²
    • Pièces 4
    • Chambres 3
  • 470 100 € *

    * Honoraires à la charge de l'acquéreur

Description

Appartement de Prestige avec terrasse/jardin Privatif à Vichy

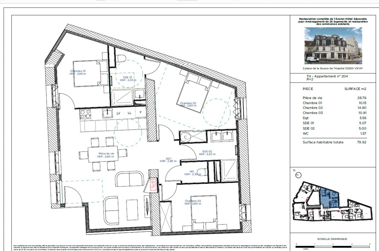
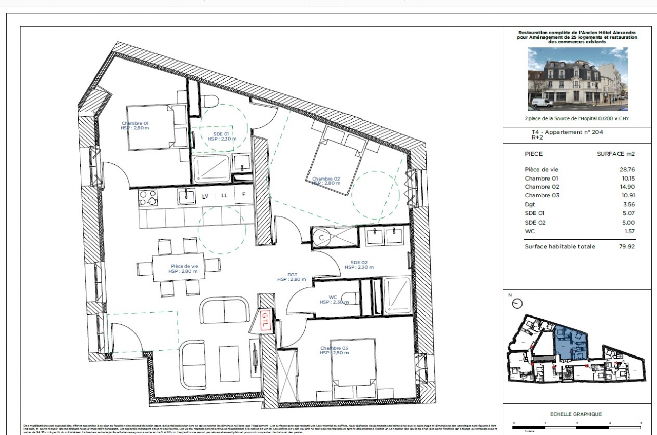
Situé au cœur du Vieux Vichy, dans la prestigieuse résidence "L’Alexandra", cet appartement de 79,92 m².

Ce bien d'exception se compose de :

                                                                                                                                                                                                                                                                                                                                                                                                                                                                                                                   - Une spacieuse pièce de vie de 28,75 m² baignée de lumière.
- Une première chambre confortable de 14,90 m2                                                                                                                                                                                                            - Seconde chambre confortable de 10,91 m².                                                                                                                                                                                                                  - Une troisieme chambre de 10,15 m².
- Un dégagement fonctionnel de 3,56 m².                                                                                                                                                                                                                      - Une élégante salle de bain de 5,07 m²..
- Une élégante salle de bain de 5 m².                                                                                                                                                                                                          
- Un WC séparé de 1,57 m².

 

**Prestations de Grand Standing :**

- **Parquet contrecollé** dans les pièces sèches.
- **Carrelage en grès cérame** dans les salles de bains, salles d’eau, WC et sous les éléments de cuisine.
- **Faïence murale** dans les salles de bains et salles d’eau, avec hauteur d’huisserie autour de la douche.
- **Porte de douche** moderne.
- **WC suspendus** pour un design épuré.
- **Menuiserie en bois** avec double vitrage et ouvrant à la française.
- **Volets métalliques extérieurs** remplacés à l’identique côté place de la source de l’hôpital et **volets intérieurs en bois** dans les chambres.
- **Chauffage rayonnant** avec régulation par thermostat d’ambiance, **sèche-serviettes** dans les salles d’eau.

 

**Un Cadre de Vie Exceptionnel :**

L’Alexandra, située au 2 Place de la Source de l’Hôpital, se trouve au cœur du quartier historique de Vichy, ville classée au patrimoine de l'UNESCO. Cette résidence de luxe est le fruit de la rénovation méticuleuse d’un ancien hôtel, offrant ainsi un mariage harmonieux entre l’élégance architecturale du XIXe siècle et le confort moderne.

La façade en pierre de l’ancienne "Alexandra Hôtel" sera restaurée pour retrouver sa splendeur d’antan, tandis que la porte en ferronnerie sera délicatement restaurée pour célébrer le savoir-faire artisanal de l’époque.

 

**Investissement Éligible au Déficit Foncier :**

Investir dans cette résidence permet de bénéficier des avantages fiscaux du dispositif Déficit Foncier. Ce dispositif offre la possibilité de déduire le montant des travaux de rénovation de vos revenus locatifs, avec des avantages tels que :

- **Déduction jusqu’à 10 700 €** sur le revenu global.
- **Report du déficit foncier** non utilisé pendant 10 ans.
- **Cumul possible** avec d’autres réductions fiscales.

L’Alexandra** propose 25 appartements allant du studio au 5 pièces, chacun bénéficiant de prestations haut de gamme, d’espaces généreux et lumineux. Certaines unités offriront des vues imprenables sur le Parc des Sources, tandis que d’autres disposeront de terrasses privatives, parfaites pour profiter des beaux jours.

Découvrez un cadre de vie unique où chaque détail est pensé pour offrir confort et raffinement. Ne manquez pas cette opportunité exceptionnelle d'acquérir un appartement de standing au cœur de Vichy, tout en bénéficiant d'avantages fiscaux attractifs.

Les honoraires d'agence sont à la charge de l'acquéreur, soit 33847€ TTC du prix du bien. Contactez Giorgio ABIOUI, agent commercial DGD Immobilier (RSAC N°445 058 498 Greffe de Cusset) 0649401496 https://www.dgd-immobilier.fr/conseillers/abioui-ei-giorgio (réf. 204r2 )

Barème d’honoraires

Informations générales

  • Type de bien: Appartement
  • Type de transaction: À vendre

Vue globale

  • Surface totale: 79 m²
  • Surface habitable: 79,92 m²
  • Surface séjour: 28,76 m²
  • Nombre de pièces: 4
  • Nombre de chambres: 3
  • Étage: 2

Les équipements

  • Chauffage: Individuel électrique
  • Eau chaude: Ballon électrique
  • Isolation: Double vitrages
  • Porte: 3 points
  • Façade: Pierre de taille
  • Toiture: Ardoises
  • Ascenseur
  • Interphone
  • Cave
  • Cuisine équipée
  • WC séparés
  • Tout à l'égout

À savoir

  • Nombre de lot: 52
  • Coproprété
  • Entretien des communs
  • Provision d'eau froide
  • Taxe ordures ménagères
  • Proximité centre
  • Proximité bus
  • Proximité commerces
  • Proximité école
  • Proximité collège
  • Proximité lycée

Bilan énergétique